Abbildung ähnlich
Pluggit

Pluggit Wohnraumlüftungsgerät Avent D160, 180 cbm/h, mit Wärmerückgewinnung, Wand-/Deckengerät

W858223 4250064202971 AD160
auf Anfrage
je 1 STCK
keine Verfügbarkeitsinformationen

Folgeartikel

Dieser wird automatisch Ihrem Warenkorb hinzugefügt.

Verkaufsdaten

Mindestbestellmenge 1 STCK
Bestellschritt 1 STCK

Beschreibung

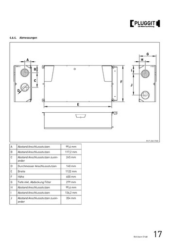
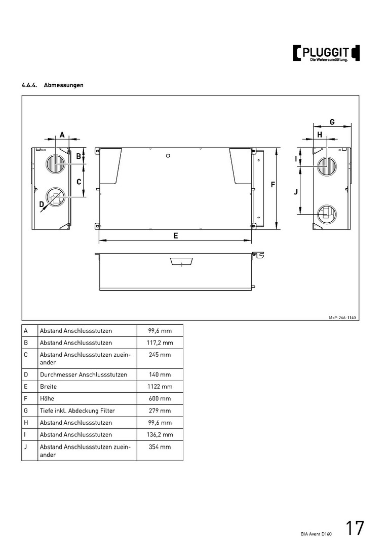
Gehäuse aus Stahlblech mit EPS-Auskleidung, als Wand- oder Deckengerät geeignet, Bedienung über iOS und Android-App, mit Kunststoffwärmetauscher in stehender Bauweise, 2 Anschlüsse vorne und hinten, Steuerung über App oder PC-Modul iFlow, zusätzlich Anschluss an BUS-Systeme möglich (Modbus über LAN), Stufe 3= 140 m3/h Nennluftvolumenstrom, 1122 x 600 x 275 mm

Merkmale

Produktklasse Wohnungslüftungsgerät
Serie Avent
Breite 1122 mm
Höhe 600 mm
Tiefe 275 mm
Spannung 230 V
Gewicht 34 kg
Energieeffizienzklasse A
Nenndurchmesser Kanal 125 mm
Geeignet für Wandmontage ja
Geeignet für Deckenmontage ja