Abbildung ähnlich
Helios

Helios ALB EC 80/50 WW Außenluft-Box mit WW-Heizreg. und Luftfilter 3-PH 400V 50/60Hz rechteckig

W845921 4010184065371 06537
auf Anfrage
je 1 STCK
keine Verfügbarkeitsinformationen

Folgeartikel

Dieser wird automatisch Ihrem Warenkorb hinzugefügt.

Verkaufsdaten

Mindestbestellmenge 1 STCK
Bestellschritt 1 STCK

Beschreibung

Merkmale

Produktklasse Boxventilator
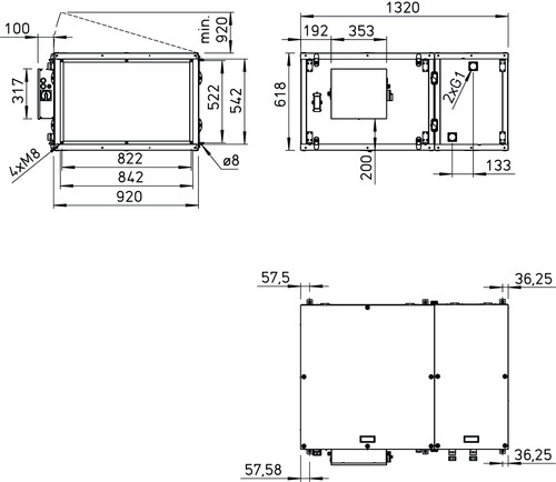
Länge 1320 mm
Breite 920 mm
Höhe 618 mm
Internet Link https://2hv.de/art06537-002
Werkstoff des Gehäuses Stahl
Schutzart (IP) IP20
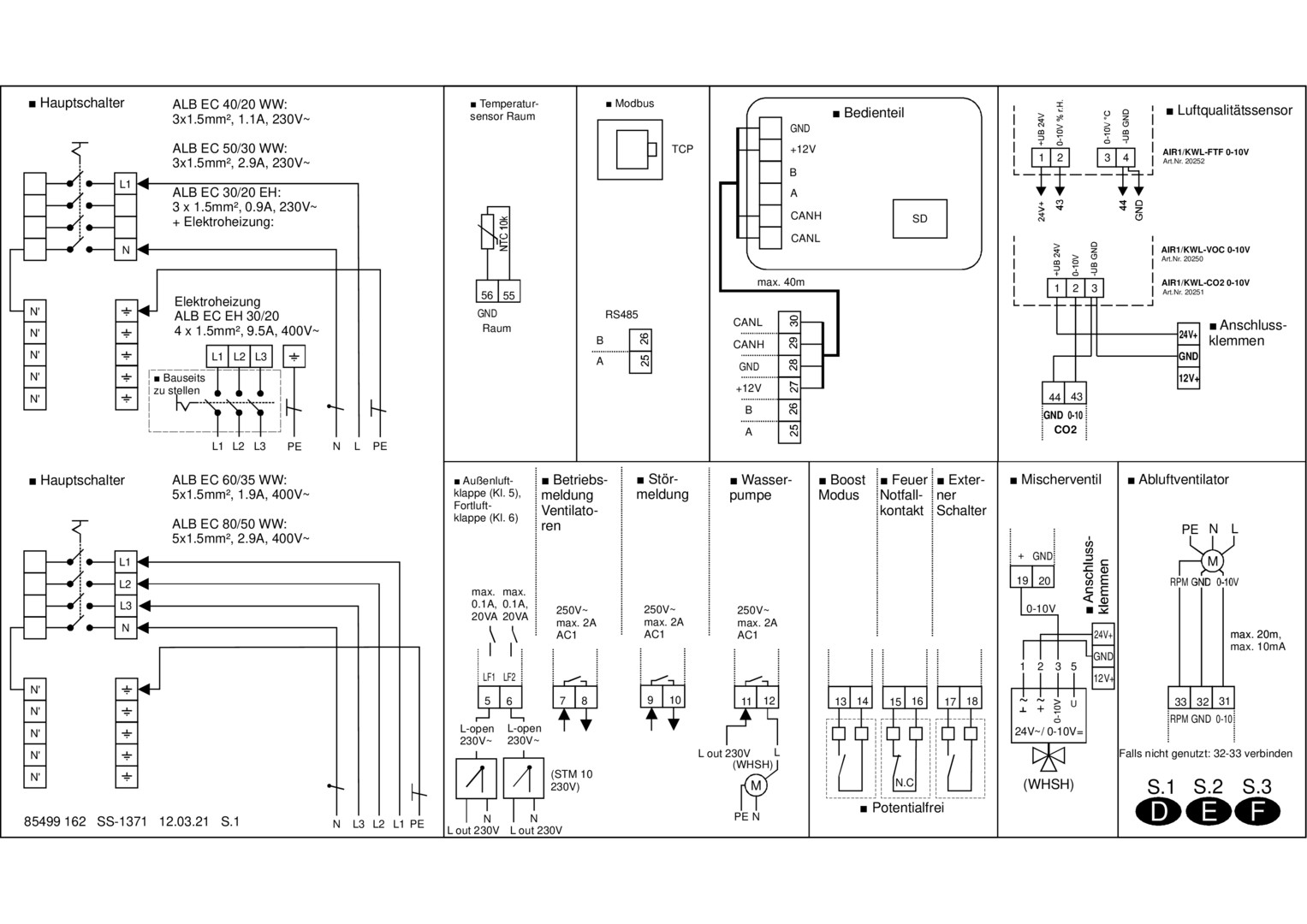
Anschlussspannung 400 V
Elektrischer Anschluss Anschlussklemmen
Mit thermischem Überlastschutz ja